Watters Property Sales

Building Site, With Full Planning Innishmore Road Lisbellaw, BT94 5NH

Residential Land For Sale

£139,000

Print additional images & map (disable to save ink)

Photo 1 of Building Site, With Full Planning Innishmore Road, Lisbellaw

Telephone:

02866 022 200

View Online:

www.watterspropertysales.co.uk/956602

Key Information

Address Building Site, With Full Planning Innishmore Road Lisbellaw, BT94 5NH
Price Last listed at Guide price £139,000
Land type Residential Land
Status Sale Agreed

Summary

  • A unique sale including a building site with FPP & access into part of Lough Barry
  • Circa 3.5 acres in total
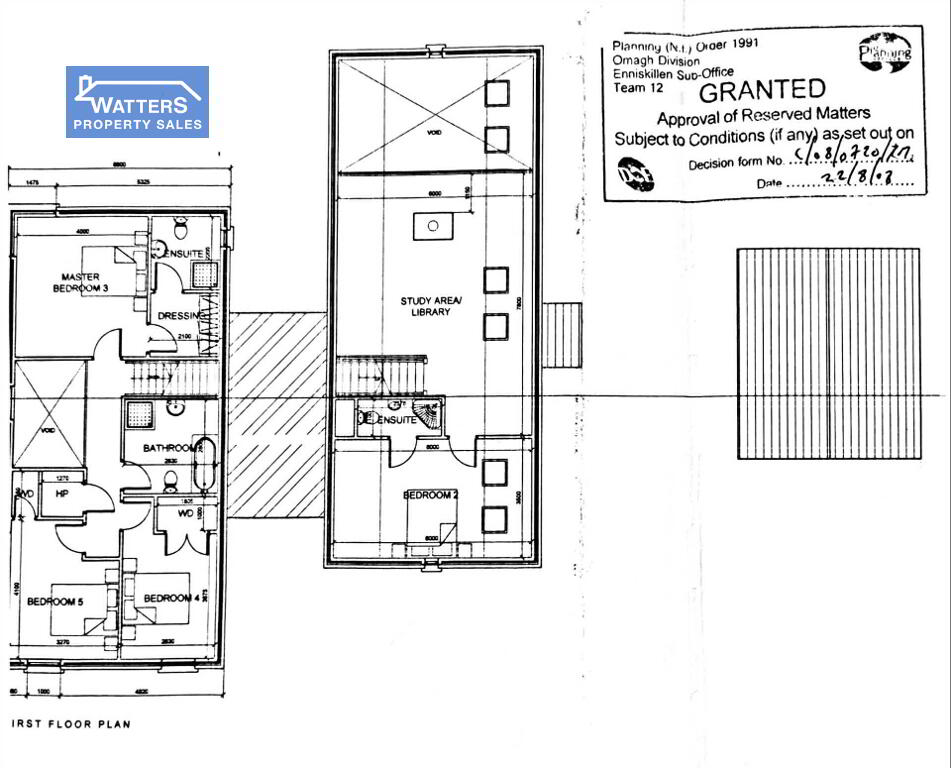
  • Planning granted for a five bedroom modern style home
  • Set in a sought after location, close to boat mooring options
  • Surrounded by countryside
  • Planning ref - L/2008/0720/RM
  • Lisbellaw Village a short drive away, Schools, Bars, Shops and local amenities
  • Situated in the stunning Fermanagh Lakelands
  • Just six miles to Enniskillen Town
  • CLUD in place

Additional Information

A dream site nestled on the banks of Lough Barry set in the stunning Fermanagh Lakelands, this unique sale includes access and ownership of part of the Lough and a building site with full planning permission, totalling circa 3.5 acres.

Planning is granted to build a family home that will benefit from the most incredible views over the glittering Lough and surrounding countryside and when complete, the home will offer five bedrooms, one of which is a downstairs guest bedroom with an ensuite, a large open plan kitchen/dining/lounge area, a main family living room, utility room, downstairs WC, a spacious home office/library and a detached garage.

This incredibly popular location just a short distance to Carrybridge Hotel (currently under construction), Crawfords Marina and the Village of Lisbellaw offering a host of amenities including a convenience Shop, Hairdressers, a Bar, Distillery/Country Pub, and Schools. The lakeside Town of Enniskillen is approximately 8 miles drive with an array of Shops, Schools and amenities. The Main A4 Belfast Road is within close proximity, allowing for an easy commute to Belfast.

We have been advised this site is not situated on a flood plain.

**Images with the red line are for a guide only - land registry map available to show site boundary**

For further information or to arrange a site visit get in touch now.

Tel: 028 66 022200

Email: info@watterspropertysales.co.uk

For the exact location, copy the link below.

what3words /// reshape.eradicate.liver

Notice
Please note we have not tested any apparatus, fixtures, fittings, or services. Interested parties must undertake their own investigation into the working order of these items. All measurements are approximate and photographs provided for guidance only.

MISREPRESENTATION CLAUSE

Watters Property Sales give notice to anyone who may read these particulars as follows. These particulars do not constitute any part of an offer or contract. Any intending purchasers or lessees must satisfy them selves by inspection or otherwise to the correctness of each of the statements contained in these particulars. We cannot guarantee the accuracy or description of any dimensions, texts or photos which also may be taken by a wide camera lens or enhanced by photo shop. All dimensions are taken to the nearest 5 inches. Descriptions of the property are inevitably subjective and the descriptions contained herein are given in good faith as an opinion and not by way of statement of fact. The heating system and electrical appliances have not been tested and we cannot offer any guarantees on their condition.

  • Watters Property Sales

    Watters Property Sales

    02866 022 200

Photo Gallery

Photo 1 of Building Site, With Full Planning Innishmore Road, Lisbellaw Photo 2 of Building Site, With Full Planning Innishmore Road, Lisbellaw Photo 3 of Building Site, With Full Planning Innishmore Road, Lisbellaw Photo 4 of Building Site, With Full Planning Innishmore Road, Lisbellaw Photo 5 of Building Site, With Full Planning Innishmore Road, Lisbellaw Photo 6 of Building Site, With Full Planning Innishmore Road, Lisbellaw Photo 7 of Building Site, With Full Planning Innishmore Road, Lisbellaw Photo 8 of Building Site, With Full Planning Innishmore Road, Lisbellaw Photo 9 of Building Site, With Full Planning Innishmore Road, Lisbellaw Photo 10 of Building Site, With Full Planning Innishmore Road, Lisbellaw Photo 11 of Building Site, With Full Planning Innishmore Road, Lisbellaw Photo 12 of Building Site, With Full Planning Innishmore Road, Lisbellaw Photo 13 of Building Site, With Full Planning Innishmore Road, Lisbellaw Photo 14 of Building Site, With Full Planning Innishmore Road, Lisbellaw Photo 15 of Building Site, With Full Planning Innishmore Road, Lisbellaw Photo 16 of Building Site, With Full Planning Innishmore Road, Lisbellaw Photo 17 of Building Site, With Full Planning Innishmore Road, Lisbellaw Photo 18 of Building Site, With Full Planning Innishmore Road, Lisbellaw Photo 19 of Building Site, With Full Planning Innishmore Road, Lisbellaw Photo 20 of Building Site, With Full Planning Innishmore Road, Lisbellaw Photo 21 of Building Site, With Full Planning Innishmore Road, Lisbellaw Photo 22 of Building Site, With Full Planning Innishmore Road, Lisbellaw Photo 23 of Building Site, With Full Planning Innishmore Road, Lisbellaw Photo 24 of Building Site, With Full Planning Innishmore Road, Lisbellaw Photo 25 of Building Site, With Full Planning Innishmore Road, Lisbellaw Photo 26 of Building Site, With Full Planning Innishmore Road, Lisbellaw Photo 27 of Building Site, With Full Planning Innishmore Road, Lisbellaw

Location

Visit www.watterspropertysales.co.uk for further details.